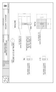
False Ceiling Panel 60x06 cm
See Det. B
See Det. A
Nail every 30 cm
Hold down clip
Galvanized Plate L-Section gauge 20
Galvanized rod 5mm every 120 cm
Galvanized Plate T-Section gauge 20
False Ceiling Panel 60x06 cm
Galvanized rod 5mm every 120 cm
Nail every 30 cm
Galvanized Plate T-Section gauge 20
Detail B
Detail A
Galvanized Plate L-Section gauge 20
Typical Drawings for Renovation
Drawn by: Soran Rostam Aziz
Detail of Suspended Ceilings
Sheet Title:
Detail of Gypsum Suspended Ceilings
Scale: NTS
Date:
DWG No.
Steel Bolt
Block wall
H-Shape beam
Suspended Ceiling
600x600
L shape
Detail of False ceiling
Typical Drawings for Renovation
Drawn by: Soran Rostam Aziz
Sheet Title:
False Ceiling Details
Scale: NTS
Date:
DWG No.
15
Double face
iron sheet gauge
18(1.58mm)
15
(W)
square pipe
(25 x 25 x 3)mm
(leaf frame)
25
50
height
Angle Iron
(1'' x 1'')
(H)
Steel bar
(1 x 1)
Spreader L-section
( 3/4" x 3/4" )
Spreader L-section
( 3/4" x 3/4" )
40
F.F.L.
Isometric of
the frame
(for double face
door)
Angle Iron
(1'' x 1'')
25
Leaf detail
for double face door
Elevation of
the frame
(for double face
door)
12
1
rough
slab
L-section (1" x 1")
for the side in witch
the hinge will be welded
Iron plate
2mm thick
3
1
2.5
Styropore
Angle Iron
(1.5''x1.5'')
Leaf
4.5
Finish
floor
Steel bar
4No.(1 x 1)
Cross section
at frame door
(for double face)
Detail for
external doors
only
Typical Drawings for Renovation
Drawn by: Soran Rostam Aziz
Sheet Title:
Detail of Double Face Steel Door
Detail of Double Face Steel Door 2.1X1m
Scale: NTS
Date:
DWG No.
W/2
15
W/2
15
(W)
height
Angle Iron
(1'' x 1'')
(H)
H
Steel bar
(1 x 1)
Spreader L-section
( 3/4" x 3/4" )
Spreader L-section
( 3/4" x 3/4" )
40
F.F.L.
Isometric of
the frame
(for double face
door)
Angle Iron
(1'' x 1'')
25
Leaf detail
for double face door
Elevation of
the frame
(for double face
door)
12
1
rough
slab
L-section (1" x 1")
for the side in witch
the hinge will be welded
Iron plate
2mm thick
3
1
2.5
Styropore
Angle Iron
(1.5''x1.5'')
Leaf
4.5
Finish
floor
Steel bar
4No.(1 x 1)
Cross section
at frame door
(for double face)
Detail for
external doors
only
Typical Drawings for Renovation
Drawn by: Soran Rostam Aziz
Sheet Title:
Detail of Double Face Steel Door
Double Face Steel Door W/ glass 2.4X1.5
Scale: NTS
Date:
DWG No.
Outer Frame
H
PVC sheet
PVC door frame
W
Detail of PVC Doors
Typical Drawings for Renovation
Drawn by: Soran Rostam Aziz
Sheet Title:
Detail of PVC Doors
Scale: NTS
Date:
DWG No.
Cover L 50x50x3mm
W
See detail-2
W
Steel tube 40x40x1.5mm
See detail-1
Hinge
Double face plate gauge 16
H
Steel tube 40x40x1.5mm
W
Plate gauge 16
Tube 40x40x1.5mm
See detail-1
Hinge
Hinge
Hinge
H
Detail-1
Plate gauge 16
Hinge
Tube 40x40x1.5mm
Typical Drawings for Renovation
Detail-2
Drawn by: Soran Rostam Aziz
Sheet Title:
Detail of Main Gate 1.6HX2.8 W
Scale: NTS
Date:
DWG No.
Main Frame Rec. Tube (75*50*2) mm
Sec Frame Rec. Tube (25*25*1.5) mm
Steel Plate 1.0 mm or Plastic Sheet 1cm
Steel Angle 75*75*1.5 mm
Steel Angle 75*75*1.5 mm
Detail of Main Gate Door 2.8 x 1.6 m
Typical Drawings for Renovation
Drawn by:
Sinan Ali AZeez
Sheet Title:
Detail of Main Gate Door
1.6H X 2.8m W
DWG No.
Date :
Scale:
(0 6)
04-10-2017
NTS