A
B
DRAWING NO.
D
E
F
G
H
#3 @200 (SUP. - INF.)
(L MAX.= 2500mm)
#4
600 (MIN.)
#4
2+2 #4
(TIP.)
1+1 #5
300
6
#5
#3 @ 200
#5
(EXT.-INT.)
(L MAX.= 2500mm)
(EXT.-INT.)
A
B
#5
#3 @ 200
#3 @ 200
4 #3
1+1 #5
(EXT.-INT.)
4 #3
5
300
300
5
1+1 #5
2+2 #4
#3 @ 200
#3 @200 (SUP. - INF.)
1+1 #5
#3 @ 200
2+2 #4
#4
#4
2+2 #4
400000
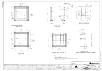
DETALLE PASADA TIPICA
400000
ESC:1: 20
(SITUACION "A")
PLANTA DE LOSA INFERIOR
ESC:1: 25
A
SECCION
(ARMADURA SUP. e INF.)
ESC. 1: 25
1+1 #5
300
#3 @ 200
300
(EXT.-INT.)
(INT. - EXT.)
2+2 #4
#3 @ 200
2+2 #4
4
250
(L MAX.= 2500mm)(NOTA 5)
250
4
.)
TIP
(
50
VER NOTA 4
1
#3 @200
#3 @ 200
#4
B
SECCION
(L MAX.= 2500mm)
1+1 #5
#3 @ 200
(TIP.)
A
ESC. 1: 25
(EXT.-INT.) (TIP.)
500 (MIN.)
#3 @200
#3 @ 200
#3 @200
(INT. - EXT.)
(L MAX.= 2500mm)(NOTA 4)
(INT. - EXT.)
#3 @ 200
#4
#3 @200
3
3
TIP
(
50
300
250
.)
250
150 (TIP.)
1+1 #5
1
#4
(EXT.-INT.) (TIP.)
2+2 #4
2+2 #4
250
#3 @ 200
(L MAX.= 2500mm)
300
#3 @ 200
300
(INT. - EXT.)
(L MAX.= 2500mm)
ELEVACION MUROS SITUACION "B"
P:\SCL_04_Eng_Dwg\01_Civ\04_Final\560-000-ST-C-006_0.dgn
DETALLE TIPICO
DOBLADO DE ARMADURA EN ESQUINAS Y BORDES
ESC:1: 25
S/E
PLANTA MUROS
ESC:1: 25
2
NOTAS:
1.- DIMENSIONES EN MILIMETROS.
2.- PARA FORMAS Y DIMENSIONES VER PLANO N^000-ST-C-003
3.- ARMADURAS DE REFUERZOS DE CAMARAS DE MAYORES DIMENSIONES DEBEN SER DEFINIDAS POR EL INGENIERO.
2
4.- ESPACIADORES 4 #3/m (TIPICO EN MUROS).
2
DRAWING NOT VALID WITHOUT SIGN AND STAMP OF DOCUMENT CONTROL
QUALITY CONTROL
DISCIPLINE MANAGER NAME
SIGN
DOCUMENT CONTROL
R E V I S I O N S
R E F E R E N C E S
1
DWG. NO.
T I T L E
SIGN & STAMP
NAME
NO.
D E S C R I P T I O N
BY
SCALE:
R E V I S I O N S
CHECK
APPROVED
DATE
NO.
D E S C R I P T I O N
BY
CHECK
APPROVED
DATE
NOTICE
PROJECT
SHEET SIZE
TOROMOCHO PROJECT
A1
S/E
AREA
DRAWN BY:
THIS IS A COMPUTER GENERATED DRAWING. ALL CHANGES
RSR
DATE:
NOV.26.08
HERE TO SHALL BE PERFORMED USING CADD ONLY.
THIS DRAWING IS THE PROPERTY OF AND EMBODIES
RMA
DATE:
NOV.26.08
APPROVED BY:
APR
DATE:
JUL.22.09
AUTHORIZED BY:
FAV
DATE:
JUL.22.09
PROPRIETARY INFORMATION BELONGING TO AKER
SOLUTIONS AND MUST BE RETURNED IMMEDIATELY UPON
REQUEST. IT MUST NOT BE COPIED IN WHOLE OR IN
0
EMITIDO PARA CONSTRUCCION
SCH
RMA
APR
FAV
21.AUG.09
B
EMITIDO PARA APROBACION DEL CLIENTE
SCH
FAF
APR
FAV
JUL.22.09
A
EMITIDO PARA COORDINACION INTERNA
RSR
RMA
RMA
PART, NOR THE INFORMATION SHOWN THERE ON DISCLOSED
TO THIRD PARTIES EXCEPT WITH THE WRITTEN
A
B
C
D
PERMISSION.
MCP APPROVED:
NOV.26.08
E
DATE:
F
MINERA CHINALCO PERU S.A.
C-560
000 - GENERAL
REVISION
CAD NO.
TITLE
CHECKED BY:
13:26:11
THIS DRAWING NOT VALID UNLESS THE LATEST REVISION INITIALS ARE HANDWRITTEN
GENERAL
ESTANDAR
CAMARAS ELECTRICAS
ARMADURA
560-000STC006.DGN
DWG. NO.
000-ST-C-006
G
User: csc3299
0
21/08/2009
000-ST-C-006
300
C
1